En Venta
EN VENTA 2 PH EN BLOCK 5 AMB + MONOAMBIENTE EN VILLA LURO
Código: 191822

Dante 100, C1407 Cdad. Autónoma de Buenos Aires, Argentina, Villa Luro, Capital Federal, Argentina.

USD127.000

PH
Compartir esta Propiedad

Descripción de la Propiedad

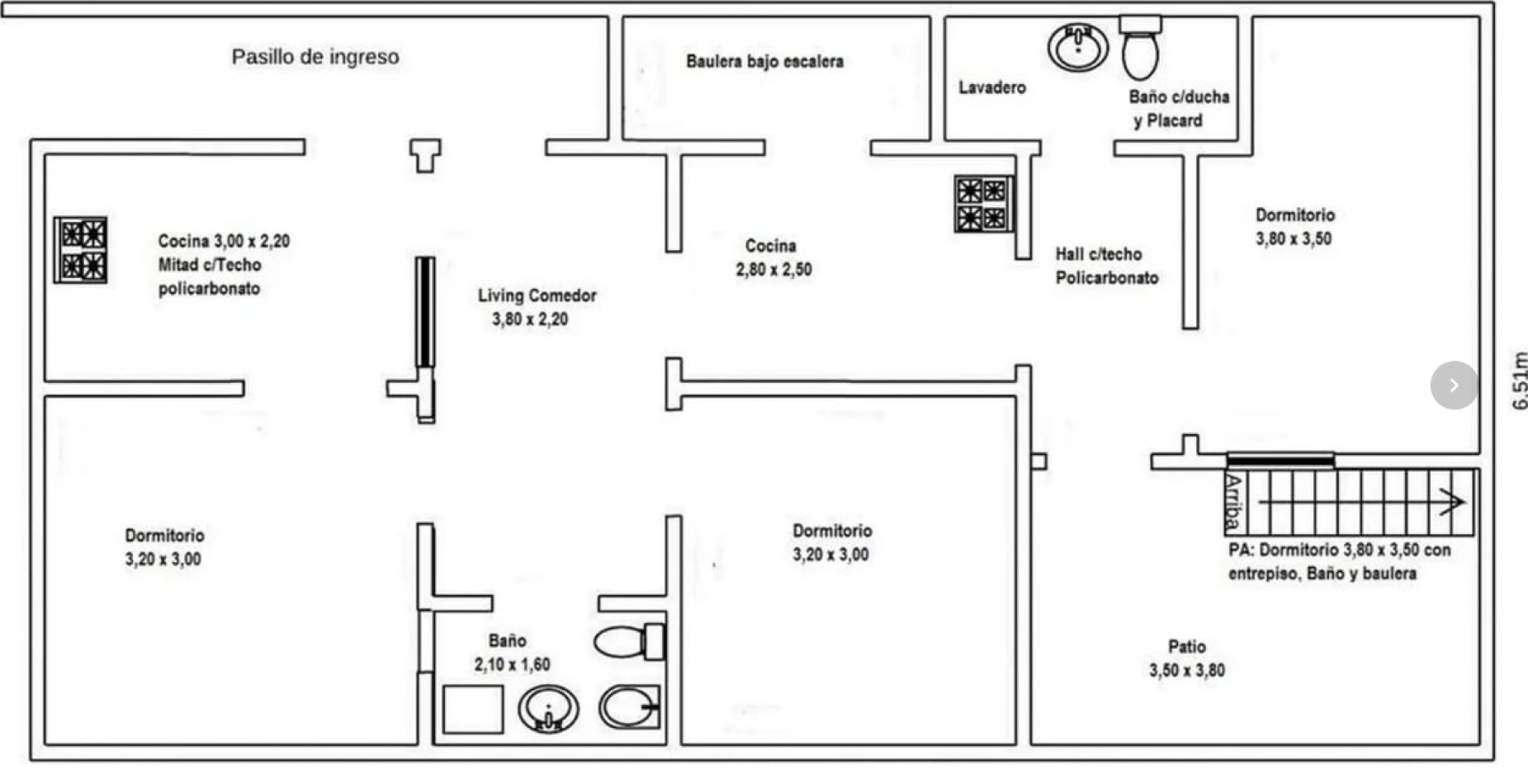
PH en block compuesto por 2 unidades, ambas con entradas independientes. Es ideal para 2 familias, uso mixto (vivienda + profesional) o inversión.
Luminosa, SIN EXPENSAS, APTO PROFESIONAL y con excelente ubicación en Villa Luro.

La 1er unidad se desarrolla en dos plantas:
En PB living comedor, cocina c/ espacio para comedor diario y baulera, amplio baño c/ sector de lavadero, 2 dormitorios bien lumininosos y un práctico patio que aporta luz y aire a toda la casa. En PA, se encuentra un 3er dormitorio, también luminoso, que junto con un entrepiso súper funcional y un segundo baño conforman un espacio íntimo y versátil.

La 2da unidad: un monoambiente completamente independiente, con cocina y baño. ¡Ideal para consultorio, estudio profesional, huéspedes o renta inmediata!

Si se quisiera, está la posibilidad de unir ambas unidades. La ubicación es inmejorable: a metros de Av. Rivadavia, a 2 cuadras de la Estación Villa Luro (Tren Sarmiento) y a 4 cuadras de la subida a la autopista Perito Moreno, en una zona tranquila pero rodeada de comercios, servicios, escuelas y excelentes opciones de transporte.
Para mas información o coordinar una visita comuníquese con la inmobiliaria Walter Porta al 4433-6160 o 15-3610-2345
Solicite tasación: con más de 25 años en el mercado inmobiliario, brindando un servicio de excelencia, con honestidad, compromiso, atención profesional y personalizada

AVISO LEGAL: Las descripciones arquitectónicas y funcionales, valores de expensas, impuestos y servicios, fotos y medidas de este inmueble son aproximados. Los datos fueron proporcionados por el propietario y pueden no estar actualizados a la hora de la visualización de este aviso por lo cual pueden arrojar inexactitudes y discordancias con las que surgen de los las facturas, títulos y planos legales del inmueble. El interesado deberá realizar las verificaciones respectivas previamente a la realización de cualquier operación, requiriendo por sí o sus profesionales las copias necesarias de la documentación que corresponda

Mas detalles
  • Luminoso
  • Patio
  • Apto profesional
  • Comedor
  • Electricidad
  • Cocina
  • Comedor
  • Dormitorio
  • Luminosidad
  • Uso comercial
  • Living Comedor
  • living
  • Patio
  • Baño completo
  • Antigüedad 60 años